专业防水堵漏施工

具有防水防腐保温一级施工资质,承接建筑防水、堵漏、修缮、加固、防腐等业务

技术百科
山东防水公司分享电梯井堵漏方案,仅供参考!
发布时间:2025-01-26 来源:涌达建工 浏览:237次
一、渗水现象
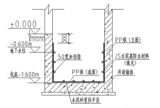
本工程四个电梯井坑内壁均有不同程度地下水渗透现象,井壁表面潮湿,但渗水量不大,坑底可见少量积水。地下水位在-0.6m以下部位。
电梯井堵漏 
二、处理方法
拟在井壁四周和坑底焊接安装10mm厚聚丙烯挤出板(即PP板),板壁距离原井道内壁20mm空隙,待PP板所有拼缝热熔坡口焊接完成后再在板后20mm空隙内注入JS复合防水材料,直至将空隙全部填充饱满。待其固化后可形成由JS复合防水层和聚丙烯挤出板二道防水保护。
三、具体施工步骤?
1、将井坑内杂物拆除,井壁清理干净,坑底用水泥砂浆找平。
2、根据坑底和井壁尺寸,分块切割完成PP板材,凡需进行热熔焊接的PP板拼缝边切割成45°角坡口,以确保热熔焊接质量。
3、先安装底板,再依次安装立板,将尺寸和垂直度调整好以后开始焊接,直至全部PP板焊接完成。
4、用环氧树脂胶纵横向粘贴50mm宽间距500mm加劲肋。
5、安装JS-I型液体:水泥粉:水=10:7:2的比例充分搅拌均匀,沿PP板背后缝隙(约20mm宽)注入,直至将缝隙全部填充饱满。填充时可在PP板上用橡皮锤轻轻敲击PP板,以确保注入的防水材料能填充饱满密实。
电梯井堵漏 

声明:本网站发布的内容(图片、视频和文字)以原创、转载和分享网络内容为主,如果涉及侵权请尽快告知,我们将会在第一时间删除。文章观点不代表本网站立场,如需处理请联系客服。电话:158-5106-6698,185-5154-0999。

本站全力支持关于《中华人民共和国广告法》实施的“极限化违禁词”的相关规定,且已竭力规避使用“违禁词”。故即日起凡本网站任意页面含有极限化“违禁词”介绍的文字或图片,一律非本网站主观意愿并即刻失效,不可用于客户任何行为的参考依据。凡访客访问本网站,均表示认同此条款!反馈邮箱:348083717@qq.com。

  • 客服微信

    扫描添加好友

    免费提供:防水堵漏施工方案

  • 扫描二维码

    访问涌达防水堵漏公司手机端

  • 已帮助
    237人
    您的鼓励是作者最大的动力